Добро пожаловать на http://vipplan.ru

Випплан Котовск - это тысячи проектов домов в нашем каталоге!

Вы всегда сможете найти для себя проект дома вашей мечты! Даже если этого не случилось, мы готовы в любую минуту предложить проект индивидуального дома.

Забыли пароль?
Вы еще не регистрировались?

Перейдите по ссылке ниже на страницу регистрации.

Регистрация...

Внимание!!!

В проектную документацию могут быть внесены изменения любой сложности, в соответствии в Вашими пожеланиями!

Полезные статьи

Выбор проекта дома в Котовске. Типовой или индивидуальный?

Строительство дома начинается с выбора проекта. От него будет зависит удобство, комфорт и функциональность Вашего будущего дома. Какой проект выбрать? В каталоге проектов домов VIPplan Котовск предоставлен огромный выбор проектов на любой вкус и кошелек. В итоге выбор сводится к покупке типового проекта дома или заказа индивидуального проекта. Для упращения задачи, расскажем о каждом варианте по отдельности...

Фундамент под гараж

Обычно фундаменты под гараж делаются из бетонного раствора и заливаются, как монолит. Гаражные фундаменты так же можно укладывать из бетона с применением бутового камня. Такие фундаменты тоже считаются монолитными. В этом случае происходит экономия бетона....

Проекты домов и коттеджей > Каталог проектов домов > Двухэтажный дом с погребом и гаражом Vg2385

Двухэтажный дом с погребом и гаражом Vg2385

Двухэтажный дом с погребом и гаражом
Зарегистрируйтесь

Проект № Vg2385


Техническое описание
Общая площадь: 166.9 м2
Жилая площадь: 79.56 м2
Высота здания: 9.03 м
Размеры дома: 13.58м×11.88м
Кол-во комнат: 5
Цокольный этаж: нет
Гараж: нет
Мансарда: нет

Kонструкция
Фундамент: ленточный монолитный ж/б.
Перекрытия: монолитная ж/б плита, деревянные балки
Материал стен: material_mon

Архитектурный раздел
Конструктивный раздел
Инженерный раздел
АР+КР - 56 000 (Со скидкой 20%)
АР+КР+ИР - 114 450 (Со скидкой 50%)
Модель проекта индивидуального двухэтажного жилого дома с размерами здания 13,58 x 11,88 м. Наружная отделка здания – декоративные панели. Фундамент – ленточный монолитный ж/б. Наружные стены – монолитный ж/б каркас с заполением теплоблоком. Перегородки - забутовочный кирпич. Пол погреба - пол по гркнту. Пол 1 этажа, межэтажное перекрытие - монолитная ж/б плита. Чердачное перекрытие - деревянные балки. Крыша многоскатная. Кровля – металлочерепица. Окна — металлопластиковые.
Генплан застройки участка / Паспорт проекта 7000 руб / 10000 руб
Инженерный раздел (полный) 58450 руб (83500 руб)
Смета на строительство 41750 руб
Теплотехнический расчет материалов стен Бесплатно
Стоимость проекта со незначительнми изменениями 65800 руб
Стоимость проекта со средними изменениями* 78400 руб
Стоимость проекта со значительными изменениями** 81700 руб

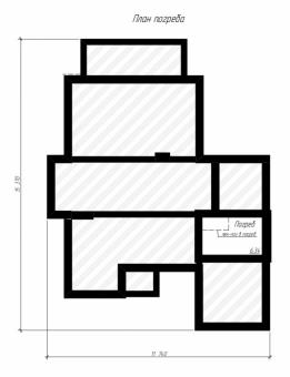
План цокольного этажа


Погреб — 6,34 м2

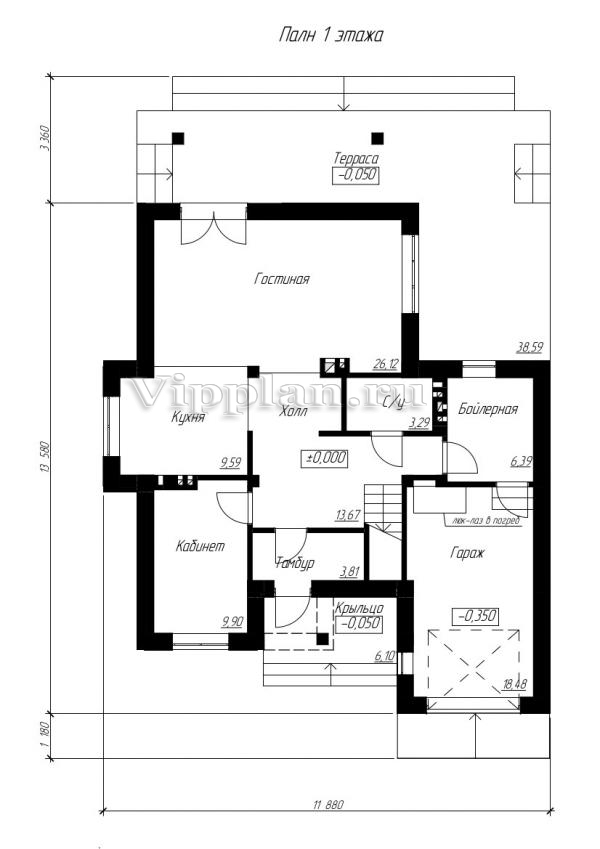
План первого этажа


Тамбур — 3,81 м2
Холл — 13,67 м2
Кабинет — 9,9 м2
Кухня — 9,59 м2
Гостиная — 26,12 м2
С/у — 3,29 м2
Бойлерная — 6,39 м2
Гараж — 18,48 м2

Двухэтажный дом с погребом и гаражом

Двухэтажный дом с погребом и гаражом

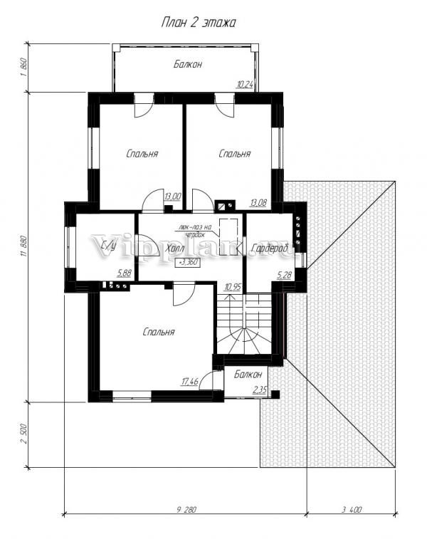
План второго этажа


Холл — 10,95 м2
Спальня — 13 м2
Спальня — 13,08 м2
С/у — 5,88 м2
Гардероб — 5,28 м2
Спальня — 17,46 м2
Балкон — 2,35 м2
Балкон — 10,24 м2
Двухэтажный дом с погребом и гаражом Двухэтажный дом с погребом и гаражом Двухэтажный дом с погребом и гаражом Двухэтажный дом с погребом и гаражом

Модификации проектов

Внесение изменений и привязка к участку строительства

В любой из проектов от компании VIPplan - Котовск по вашему желанию могут быть внесены изменения в материалы стен, материалы наружной отделки дома, а также будет произведена адаптация проекта под конкретный регион строительства (с учетом грунтов региона, геологических особенностей вашего участка и местных климатических условий) - БЕСПЛАТНО !!! (кроме проектов со скидкой и проектов наших партнеров).

Любой из проектов, размещенных на сайте kotovsk.vipplan.ru мы можем выполнить из требуемых вам строительных материалов: ячеистый бетон (газобетон, пеноблок), керамоблок, кирпич, шлакоблок, бетонный блок, дерево (брус, клееный брус), каркасная технология (деревянный каркас, металлокаркас (ЛСТК)).

Фасад дома и его наружную отделку так же возможно выполнить с применением различных облицовочных материалов: структурной штукатурки, (с утеплителем и без), сайдингом (пластиковый или металлосайдинг), фиброплитами, кирпича.

 
6 Избранные
проекты

Доставка проектов по России: Москва (Московская область), Санкт-Петербург (Ленинградская область), Краснодар, Ростов-на-Дону, Ставрополь, Сочи, Волгоград, Новосибирск, Белгород, Брянск, Воронеж, Саратов, Хабаровск, Астрахань, Нальчик, Владикавказ, Екатеринбург, Тюмень, Самара, Нижний Новгород, Казань, Пермь, Уфа, Челябинск, Красноярск, Ханты-Мансийск, Иркутск, Курган, Оренбург, Омск, Томск, Барнаул, Новокузнецк, Кемерово, Абакан, Чита, Якутск, Южно-Сахалинск, Петропавловск-Камчатский и страны ближнего зарубежья: Белоруссия, Украина, Казахстан